• Eigenheime
  • Grundstuecke
  • Finanzierung

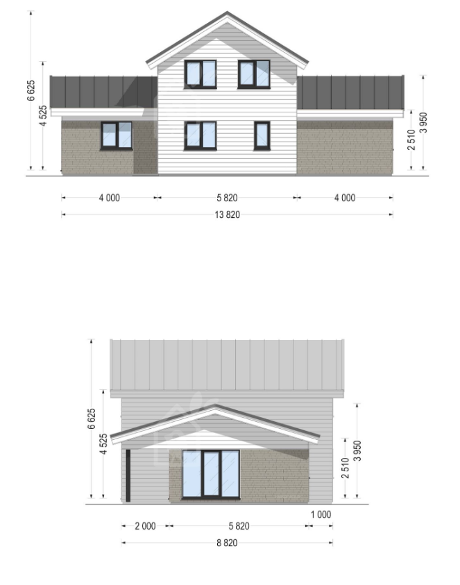
Haus Holland 116 m²

Copyright © Alle Rechte vorbehalten.
Share by: