• Eigenheime
  • Grundstuecke
  • Finanzierung

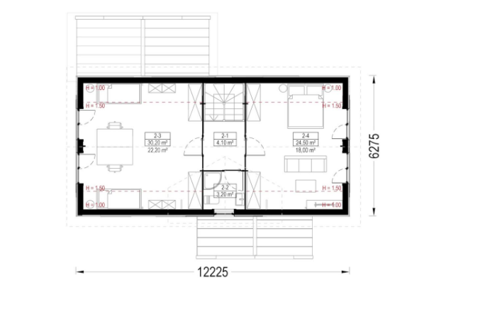
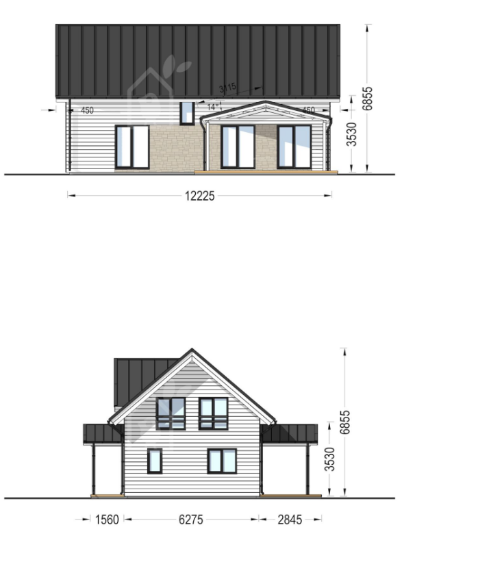
Haus Vera 127 m²

Copyright © Alle Rechte vorbehalten.
Share by: